Bering 88
26.20 m
Length Overall (LOA)
23.85 m
Load Line Length (LLL)
220 mT
Displacement
233 GT
Gross tonnage
8.10 m
Beam
5000+ nm
Range

Under Construction

Exteriors

Interiors

Layouts

close
Profile
Top View
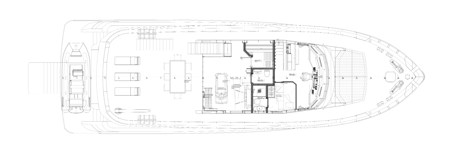
Upper Deck
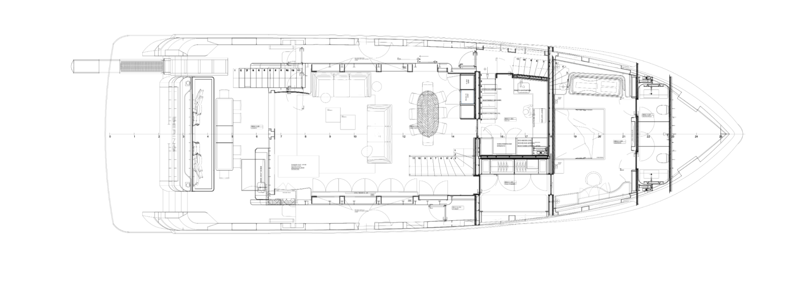
Main Deck
Lower Deck
Profile
fullscreen

Brief Specifications

Request full spec
Length Overall (LOA)
26.20 m (85’9″)
Length Waterline (LWL)
24.80 m (81’3″)
Maximum Beam
8.10 m (26’8″)
Maximum Draft
2.40 m (7’9″)
Displacement Full Load
220 mT (485.012 lbs)
Gross Tonnage
233 GT
Fuel
39.755 L (10.502 gal.)
Fresh Water
2.962 L (775 gal.)
Cruise Speed
8.5 knots
Maximum Speed (Half load)
10.5 knots
Range
5.000+ nautical miles (Cruise Speed 8.5 kn)
Guests
10
Crew
5
Tender length
5.2 m
Certification
Сlassification society upon request
Classification
CE class A
Hull Type
Full Displacement
Material
Steel + Aluminum