Bering 130
39.76 m
Length
8 m
Beam
399 GT
Gross tonnage
12+7
Guests + Crew

Performance

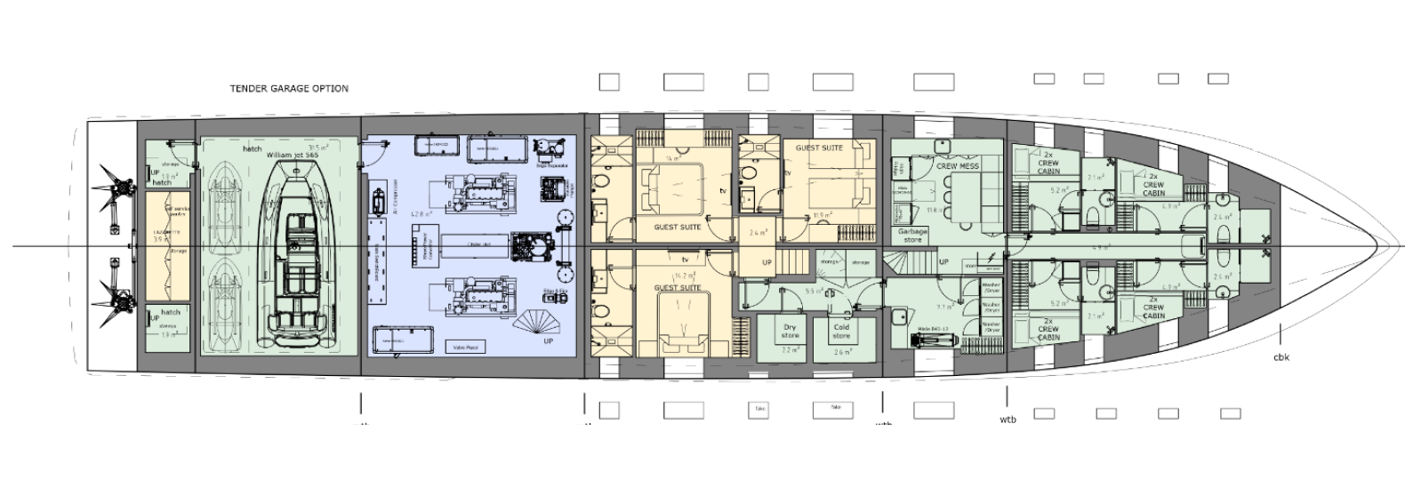
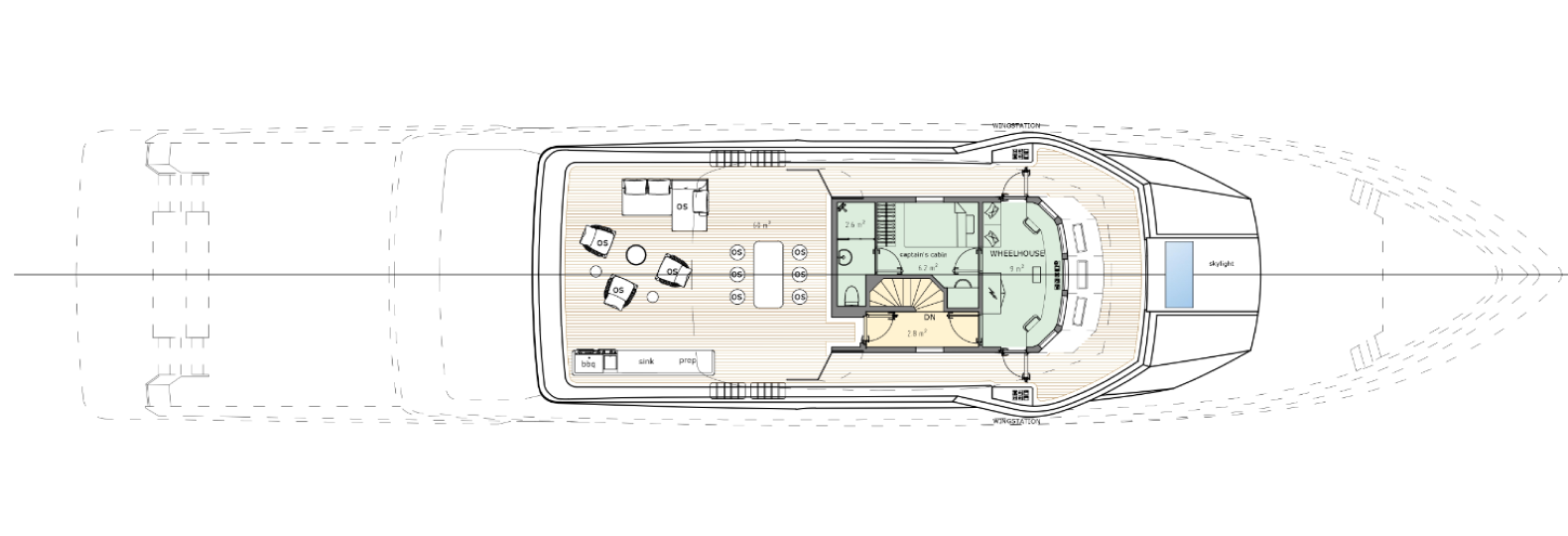
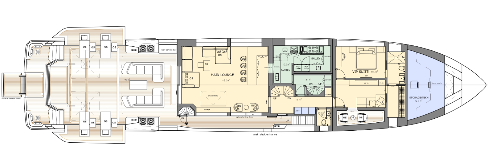
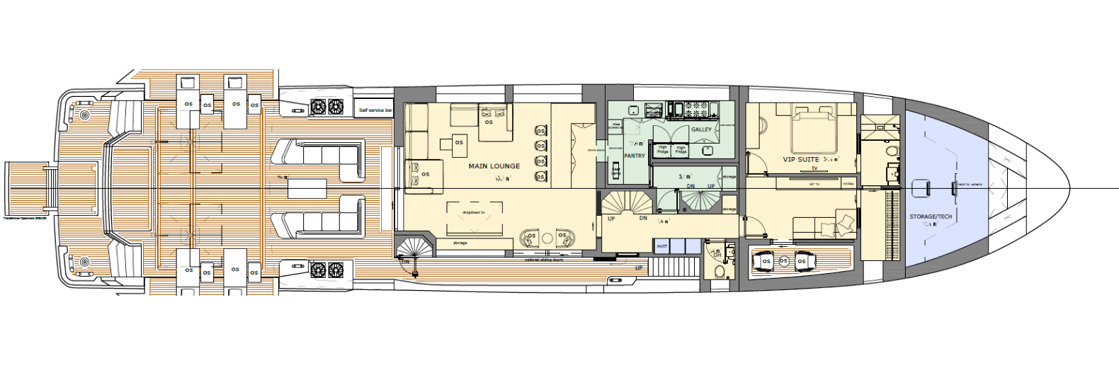
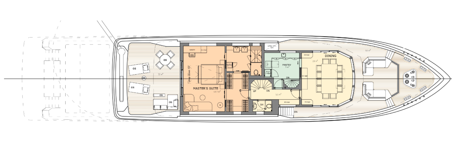
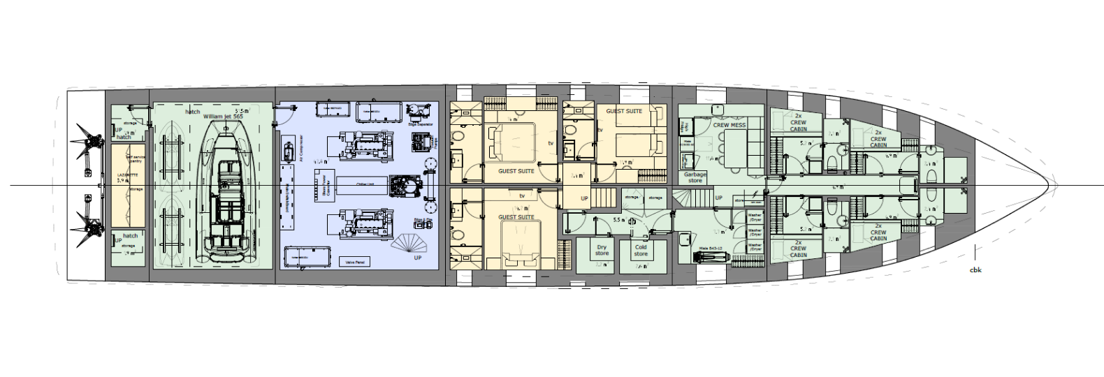
The Bering 130 is a groundbreaking 130-foot (40-meter) steel explorer superyacht that redefines capability, space, and versatility in its class. Developed in close collaboration with Valentin Design (exterior) and Aberton Yachts (naval architecture), it introduces an innovative four-deck layout that feels significantly larger than its length suggests, delivering exceptional spatial efficiency and flow unmatched in comparable yachts. Offered in flexible Pleasure (4 guest staterooms + dedicated owner’s deck, optimized for 7 crew) or Charter (6 guest staterooms full 9-person crew) configurations,, the B130 features a rare main-deck VIP suite with private balcony, a bold asymmetric salon that maximizes interior volume, and a private owner’s deck with full-beam suite, separate study/lounge, private pantry, dumbwaiter, and secluded aft terrace with Jacuzzi.

Built for true autonomy, it boasts a 5,000+ nautical mile range, extensive cold storage and provisions capacity for weeks of self-sufficient operation, an integrated beach club with pool, and hydraulic fold-down terraces for redefined outdoor living. Engineered from the keel up for long-range independence and refined comfort, the Bering 130 is available for order with full customization — contact our Superyacht Division to explore deck plans, specifications, and how we can tailor this uncompromising explorer to your vision.

Request brochure

Exteriors

Layouts

close
Flybridge
Owner Deck
Main Deck
Lower Deck
Profile

fullscreen

fullscreen

fullscreen

fullscreen

fullscreen

Brief Specifications

Request full spec
Length Overall (LOA)
39.76 m (130′)
Length Waterline (LWL)
38.37 m (125’8″)
Maximum Beam
8.00 m (26′)
Maximum Draft
2.55 m (8′)
Displacement Full Load
420 mT (925,932 lbs.)
Gross Tonnage
399 GT
Fuel
56.550 L (14.938 gal.)
Fresh Water
9.100 L (2.400 gal.)
Cruise Speed (Half load)
10 knots
Maximum Speed (Half load)
14 knots
Range
4.500+ nautical miles (Cruise Speed 10 kn)
Guests
10-12
Crew
7-9
Tender length
5.6 m
Certification
Classification society upon request
Classification
Pleasure Class; BV or RINA Charter Class
Hull Type
Full Displacement
Material
Steel + Aluminum

Compare

Length Overall (LOA)
Length Waterline (LWL)
Maximum Beam
Maximum Draft
Displacement Full Load
Gross Tonnage
Fuel
Fresh Water
Cruise Speed
Maximum Speed (Half load)
Range
Guests
Crew
Tender length
Certification
Classification
Hull Type
Material